Appartement en DUPLEX 3 pièces de 57 m² Carrez et 67 m² de surface au sol | Saint Louis | Versailles
Versailles 78000
0
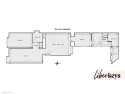
Liberkeys vous propose cet appartement traversant en duplex 3 pièces de 57m² en carrez, situé au rez-de-chaussée d'une petite copropriété sans ascenseur, quartier "SAINT-LOUIS"à Versailles.
****En exclusivité chez Liberkeys****
Sur le bien :
Appartement de charme, traversant de 3 pièces en duplex (67m² de surface habitable) entièrement rénové en 2018 avec des matériaux nobles.
Poutres apparentes, tomettes anciennes, portes en chêne, robinetterie italienne de marque.
Le bien est composé d'un salon orienté SUD-EST donnant sur cour, d'une chambre avec rangements intégrés, d'une salle de douche avec WC suspendu, d'une cuisine haut de gamme entièrement équipée. La seconde partie de l'appartement dessert un espace aménageable en bureau ou petite chambre d'enfant. Dans la pièce suivante, à l'étage, une chambre de 10m² pouvant accueillir deux lits simples et composée de plusieurs rangements intégrés, dispose également de sa propre salle de bain avec baignoire et WC suspendu. Un dégagement/ buanderie laisse un accès direct à la cour.
Le bien est complété par une cave saine.
Les plus :
- charme de l'ancien et entièrement rénové il y a 5 ans
- rez-de-chaussée calme permettant un accès facile à l'appartement
- idéal pour personne âgée ou jeune famille avec enfants
- proches toutes commodités écoles, squares, forêt et parc sont à 5 minutes
- trains et bus à proximité immédiate
Faibles charges : 75€ par mois de charges de copropriété
Taxe foncière : 701€ par an
Chauffage au sol
Double vitrage
Sur l'immeuble :
Construit fin XVIII. Petite copropriété agréable de 4 appartements, géré par un syndic bénévole.
Sur la localisation :
Proches toutes commodités et écoles en face
5 min à pied de la pièce d'eau des Suisses et du château de Versailles
10 min à pied des 2 gares Versailles Chantiers et Rive gauche
30 min de la gare de Saint Lazare et 15 minutes de Montparnasse par la ligne L, N et U.
Libre immédiatement.
****** Ce bien vous plaît ?
Visitez-le virtuellement en 3D sur le site Liberkeys puis appelez l'agent Liberkeys pour échanger sur ce bien. Liberkeys, votre agence immobilière Humaine, transparente et réactive pour les vendeurs et acheteurs. Honoraires à la charge du vendeur.
68 m²
6 912 €
12 m²
3
2
2
1
Oui
Oui
Consommations énergétiques
Logement économe
217
Logement énergivore (kWhEP/m2/an)
Émissions de gaz à effet de serre
Faible émission de GES
46
Forte émission de GES(kgeqCO2/m2/an)
Contact Liberkeys - Département des Ventes
Contacter gratuitement à l'aide du formulaire ci-dessous.